Bad?

Bruke den plassen som er eller bygge på? Det var det det hele kokte ned til.
Det har aldri vært noe bad på Bekken. Knapt nok innlagt vann. En håndpumpe på kjøkkenveggen ved utslagsvasken er det nærmeste vi kommer. Den skal ha blitt installert på 1950-tallet. Før det var vannbæring en del av hverdagen her. Det er ikke mer enn 70 år siden, men likevel for oldtiden å regne sett med vår tids øyne.

Dype tanker: Eier Morten Nordstad startet prosjektet på Bekken i januar 2019, og har erfart at gamle hus byr på mange overraskelser.
Ikke ute, ikke inne
Lenge før vi startet rehabiliteringen i januar 2019, var plasserig av et bad tema. Skjønnhet er viktig, men ikke alt. Og et hus uten bad, er ikke noe tema. Morten Nordstad og jeg gikk over huset og så på alternativene. At kjøkkenet skulle forbli på sin gamle plass, var tidlig klart. Men kammerset mot syd, kunne vi bruke det til noe? Eller hva med rommet i andre etasje som fremdeles sto uinnredet? Det måtte jo egne seg.

Bryggerhuset: Ett av alternativene til nytt bad var å legge det i bryggerhuset, men hvem vil gå over tunet en vinternatt?
Det lå jo nærmest og ventet på oss. På den annen side, det hadde tilgang gjennom sideværelset. Hvor praktisk ville det være? Dessuten, det kunne bli et praktfullt og sydvendt soverom med sine bare tømmervegger. Ved å å la det stå som nå ville en natt her føles som litt ute og litt inne. Hvor mange tilsvarende rom finnes fremdeles uinnredet i Stange Vestbygd? Vil det ikke være en spektakulær opplevelse og våkne opp i et slikt værelse? Vi fredet det for videre innredning. At det aldri ble innredet er en del av historien om Bekken. Historien om en bygning som ble reist stor nok til kommende behov. Men også en økonomi som kanskje ikke tålte all verdens belastninger.

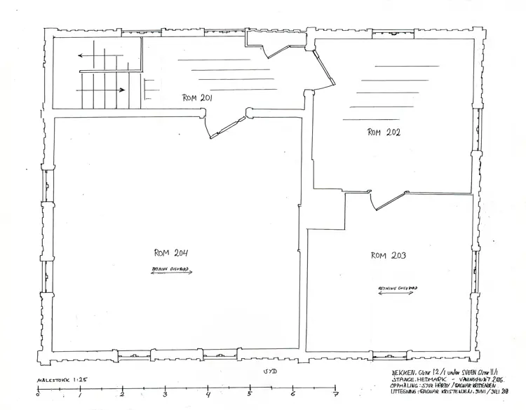
Tegningen viser romplanen i andre etasje. Rom 203 står etter 200 år fremdeles uinnredet og skal forbli så. Rom 204 er nærmest for en sal å regne, mens hjørneværelset mot nordøst trolig er det siste rommet som ble innredet på Bekken. Det skjedde i 1860-årene. Tegningen er utført av bygningsantikvar Ragnar Kristensen.
De siste alternativer
Var det flere alternativer? Å jada. Vi vurderte gamle bryggerhuset. Men det ville kreve ombygninger. Dessuten vil vi miste verdifulle sengeplasser. Og hvor morsomt er det å gå ut i øsende regn, eller eventuelt, bitende kulde? Et eget badehus ble også kastet opp som idé, men avvist med samme grunn. Du må kunne gå tørrskodd eller barbeint på badet. Vi sto igjen med to alternativene, enten kammerset innenfor kjøkkenet eller bygge på. Vi besluttet å bygge å på. Hvorfor det?
Det får du svar på i neste artikkel i serien :)
Neste artikkel: Bygge på, eller bygge til?

Sjur Harby er utdannet magister i nordisk arkeologi og er grunnlegger av dagens Disen kolonial. Han har arbeidet med kulturarv ved en rekke institusjoner som Riksantikvaren, Hedmark fylkeskommune, tidligere Norsk institutt for jord- og skogkartlegging (NIJOS) m.m. Han driver rådgivning til eiere av eldre bygningsmasse og kulturhistoriske anlegg, utfører tilstand- og tiltaksplaner samt skriver forretningskonsepter for kommersiell bruk av eldre eiendommer.